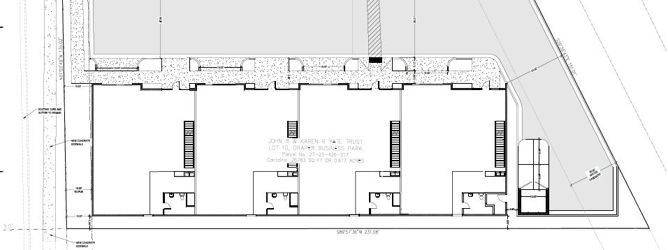
Draper Flex Tech

Draper Flex Tech

  • Location: Utah
    • Address: 12251 South Lone Peak Parkway
      Draper, UT 84020
  • Property Type: Land/To Be Developed

Contact

Angela Eldredge
801-478-8000
aeldredge@pricere.com

Katie Romney
801-478-8000
kromney@pricere.com

Slide

Let's Talk

Reach out to see how we can work together.

Contact Us